Book Direct and Save 10% of your next booking with code STAYJEP
Northeast Florida Retreat
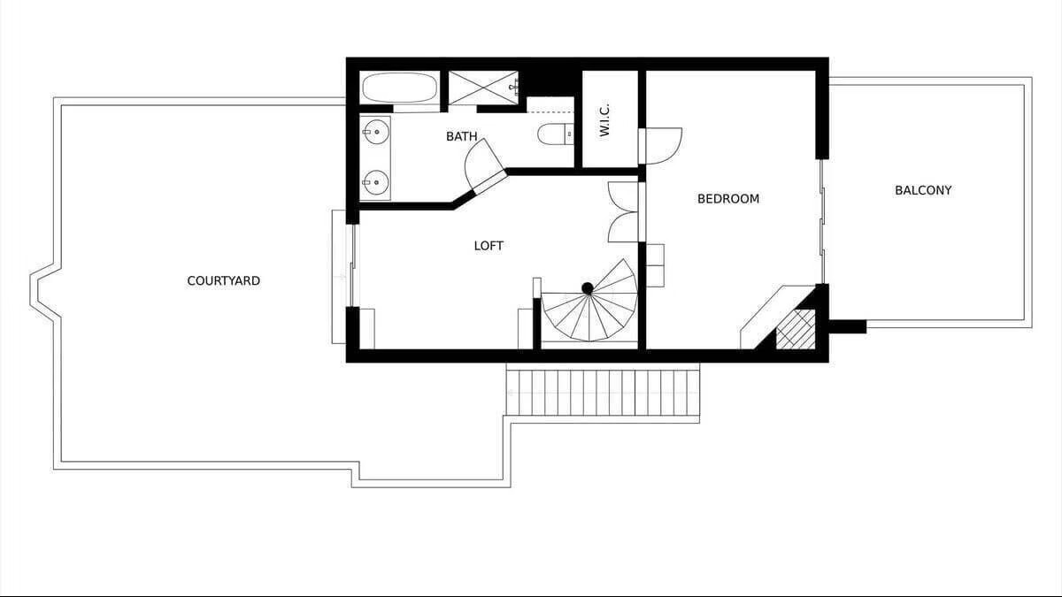
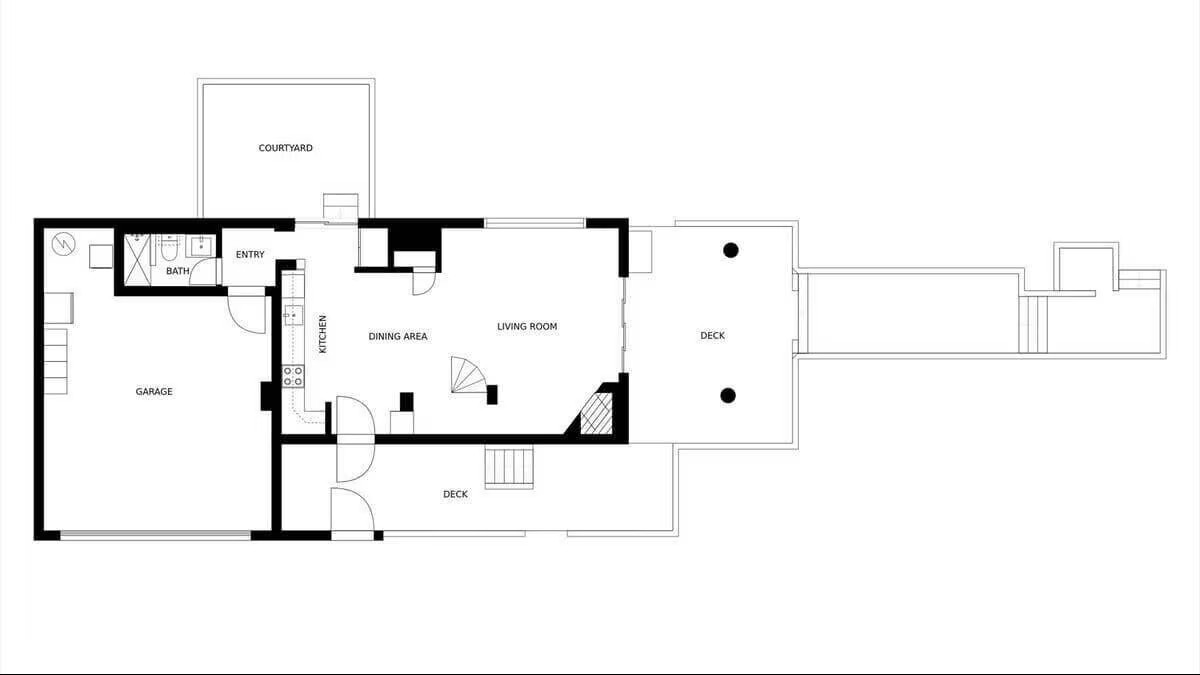
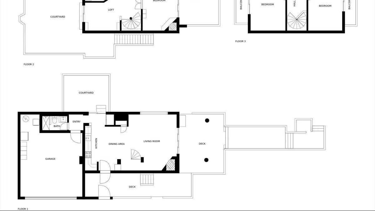
Wake up to the sound of waves in this beautiful 3BR/3BA beachfront home in Ponte Vedra Beach. With the Atlantic Ocean on one side and the peaceful Guana Preserve on the other, you’ll enjoy incredible views and privacy. Relax on the spacious deck, sip coffee at sunrise, and unwind after a day in the sand. The home features a bright open living area, fully equipped kitchen, and three comfortable bedrooms with three full bathrooms. Minutes to golf, dining, and historic St. Augustine.
Northeast Florida Retreat

